Обяви 0 За нас Контакти
Продава КЪЩА
град София, с. Бистрица
м-т Цонкина махала
1 050 000 €
2 053 621.50 лв.

(2 188 €, 4 279.36 лв./m2)
Цената е без ДДС
История на цената
Коригирана в 11:46 на 13 май, 2026 год.
Обявата е посетена 766 пъти.
Площ:
480 m2
Двор:
357 m2
Строителство:
Тухла, Ще бъде въведен в експлоатация 2027 г.

Описание на имота:


Представяме Ви новия ни ексклузивен проект, който се изгражда в с. Бистрица, на ул. Горски пейзаж, където природата разказва своята история за хармония, светлина и уют.
Тук, сред зеленина и гледка към Витоша, се ражда проект, вдъхновен от идеята за модерен живот в прегръдката на природата три самостоятелни къщи с двор: Terra, Sierra и Aera, вдъхновени от идеята за модерен живот в хармония с природата.

Къща SIERRA:

Представяме Ви еднофамилна къща SIERRA премиум имот в сърцето на Бистрица, съчетаващ модерна визия, качествено изпълнение и хармония с природата. Имотът се намира в тих и престижен район с прекрасни гледки, чист въздух и бърз достъп до София. Всяка къща е разположена на самостоятелен парцел, като този имот разполага с терен от 596 кв.м и обособен частен двор от 357,6 кв.м.

Къща SIERRA е изпълнена с монолитна конструкция, висок клас материали и детайлно прецизирани системи. Фасадата е решена с декоративна минерална мазилка BAUMIT и елементи от дървена обшивка. Дограмата е алуминиева с трислоен стъклопакет, осигуряващ отлична енергийна ефективност и шумоизолация. Отоплението е с термопомпа и подово отопление. Всяка къща разполага със собствено пречиствателно съоръжение.

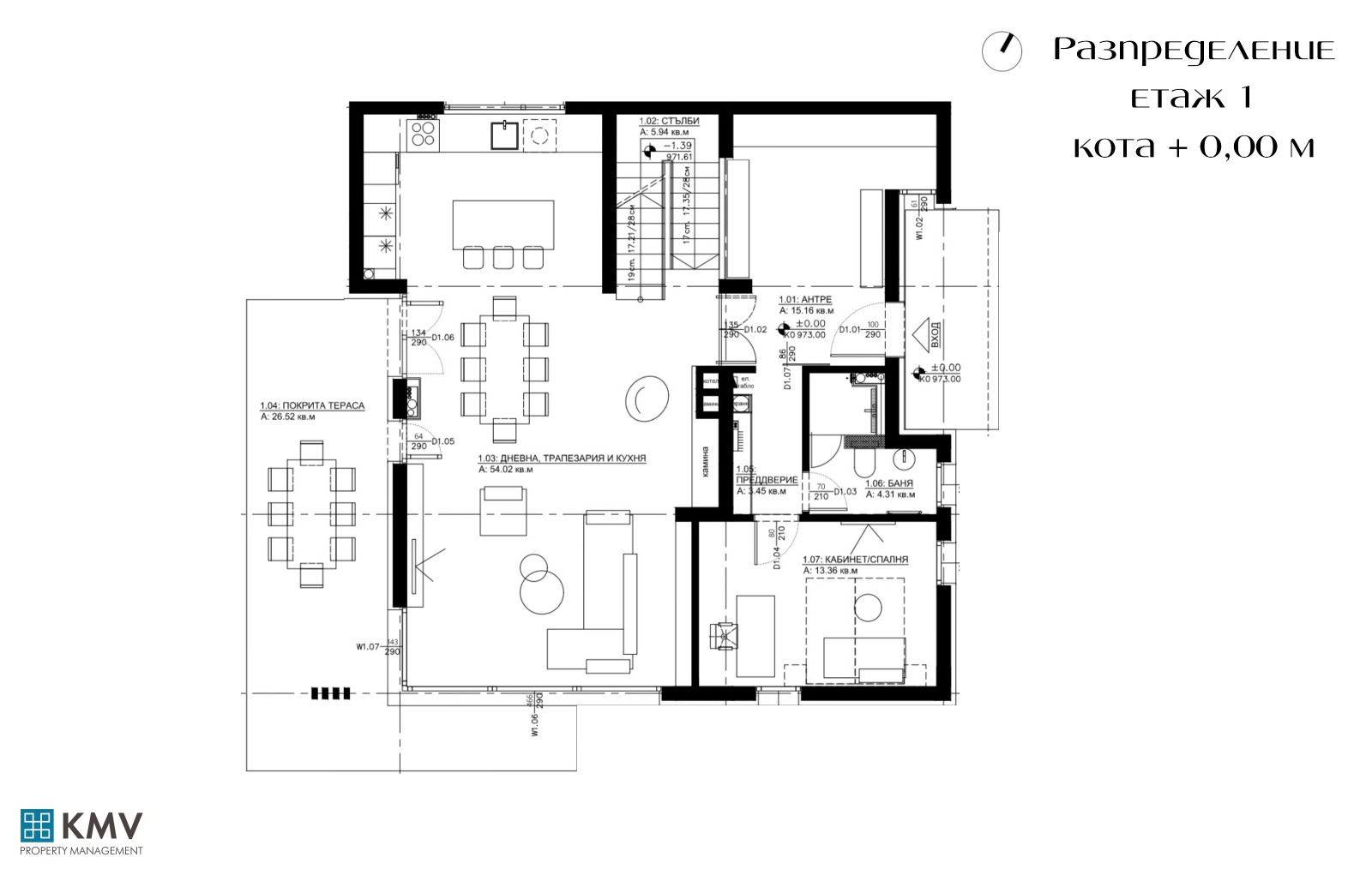
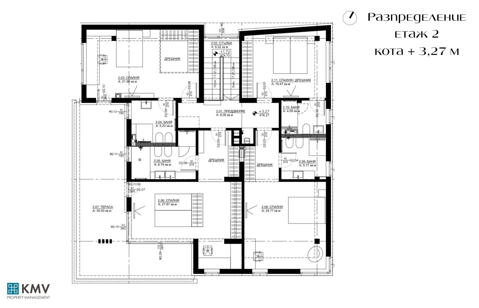
Разпределение:

етаж -1/ сутерен

ЗП сутерен 160 кв.м

Сутеренният етаж предлага богат набор от функционални и удобни пространства:

Гараж за два автомобила 56,67 кв.м

Сауна и фитнес зона 27,72 кв.м

Перално помещение 15,75 кв.м

Техническо помещение 19 кв.м

етаж 1/ партер

ЗП партер 113,20 кв.м

Антре 15 кв.м
Просторна дневна с кухня 54 кв.м

Кабинет-13,36 кв.м

Баня- 4,31 кв.м

Покрита тераса 26,52 кв.м с излаз към двора

етаж 2

ЗП етаж 185 кв.м

Спалня 1 мастър суит, 27,87 кв.м със собствена баня (6,79 кв.м) и дрешник

Спалня 2 21,90 кв.м със собствена баня (5,23 кв.м) и дрешник

Спалня 3 24,77 кв.м със собствена баня (5,17 кв.м) и дрешник

Спалня 4 15,47 кв.м, подходяща за спалня, кабинет или голям дрешник

Две от спалните имат излаз към общ балкон с площ 30,93 кв.м, предлагащ панорамни гледки и естествено осветление.

Дворът към къщата е самостоятелен и озеленен според проект. Изградена е автоматична поливна система и пълна инфраструктура за градинско осветление. Оградата комбинира плътна основа и ажурни елементи до 220 см.

SIERRA носи духа на високите върхове сила, мащаб, чистота и престиж.
Името звучи ясно и мощно, точно като планините, които го вдъхновяват.
SIERRA e дом е за хора с характер за тези, които търсят пространство, спокойствие и величествена красота, но и дом, който прави впечатление със своя присъствен стил.

Къща SIERRA в с.Бистрица е дом за ценители ново строителство с качество, комфорт и усещане за завършеност.

Предлагаме разсрочено плащане:

20% на подпсиване на Предварителен договор
20% при монтирана дограма
60% на етап АКТ 16
всички цени в проекта са без вкл.ДДС
Особености
Тухла
За контакт:
0887 98 93 98
Брокер:
Ивелина Димитрова
0888268116; 0883200300
Офис: гр. София, ул. Васил Калчев 2, ет.2, офис 4
Още оферти от брокера: Продава | Дава под наем | Купува | Наема
Агенция:
КМВ ПРОПЪРТИ МЕНИДЖМЪНТ ЕООД
0877000900
КМВ ПРОПЪРТИ МЕНИДЖМЪНТ ЕООД logo
Медал за прослужено време
В imot.bg от 2014 г.
kmv.imot.bg
Адрес:
област София, гр. София, ж.к.Дианабад, ул.Васил Калчев 2, ет.2, офис 4
http://www.kmv-bg.com
ИЗПРАТИ ЗАПИТВАНЕ
ИЗПРАТИ ЗАПИТВАНЕТО

Продава КЪЩА
град София, с. Бистрица
м-т Цонкина махала
Обява: 1j177312855022000

1 050 000 €
2 053 621.50 лв.
История на цената
(2 188 €, 4 279.36 лв./m2)

Цената е без ДДС
ЗАПАЗИ ОБЯВАТА

Местоположение: град София, с. Бистрица, м-т Цонкина махала

Допълнителни данни за имотите в района и сравнение с други райони

Покажи

Период

и 5 месеца

* Средните цени са определени чрез медианна стойност